Dental Office Planning and Construction
We have built quite a few of them.
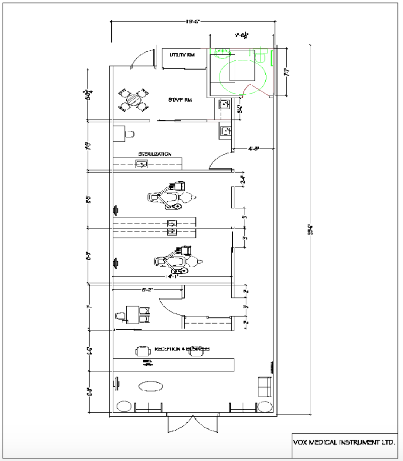
We will work with you, to build your dream dental office from start to finish.
We put together a knowledgeable and professional team of engineers, architects and trades to make your vision a reality.
We can provide turnkey dental offices from scratch or renovate your existing one. We will interact with local authorities, Electrical Safety Authority and Health Canada for X-ray approval to streamline and speed-up the process and minimize potential problems that might appear along the way.
We also build Pharmacies, and Medical offices.
